Jeremy Stacey Architects

Menu

  • Projects
    • Cultural & Public Realm
      • Drill House
      • Ice House
      • Fountain Bar
      • Swaffham Community Centre
      • Swaffham Assembly Rooms
      • Great Yarmouth Town Hall
      • Dereham Memorial Hall
      • St John's Church
      • The Iron Duke
      • St James Church
      • St Georges Church Rooms
    • Mixed Use
      • Historic King Street Regeneration
      • Urban Block, Great Yarmouth
      • Co-op Store Redevelopment
      • Juniper House
      • 160 King Street
    • Residential
      • Private House in Suffolk
      • Workhouse Conversion
      • Private House in the Woods
      • Barn Conversion
      • Day's Field Housing
      • Various Residential
    • Landscape
      • Greyfriars Tower Gardens
      • Boston Square Sensory Park
      • Queen Mother's Garden
      • Dereham Cemetery
      • Swaffham Market Place
      • Private Garden, North Norfolk
      • Country Park for Dereham
  • About
  • Publications
  • Awards
  • Contact

St Georges Church Rooms

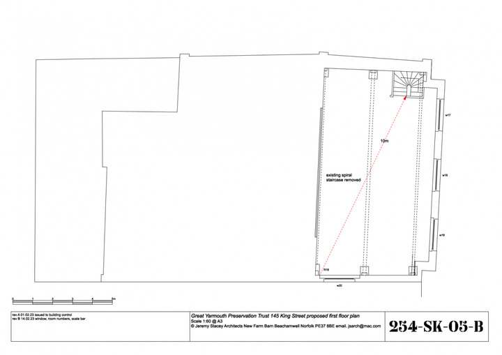
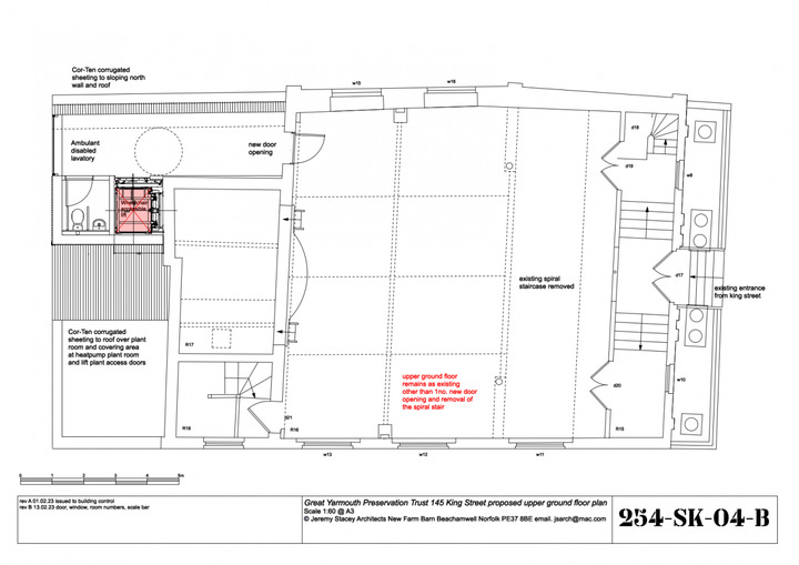
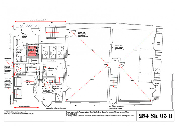
St Georges Church Rooms in Great Yarmouth was built in 1891 and partly rebuilt and extended in the 1950s. Formerly a chapel of ease subservient to the Parish Church of St Nicholas it has been deteriorating for many years. The building has a first floor mezzanine gallery that overlooks the main space and raised stage area designed for assemblies and theatre. It is a lofty space roofed with curved trusses and cranked rafters. The lower ground floor accommodated classrooms. The proposal, currently in the early stages of construction, is to provide artists’ studios and an exhibition space.

St Georges Church Rooms

St Georges Church Rooms

St Georges Church Rooms

St Georges Church Rooms

St Georges Church Rooms

St Georges Church Rooms

St Georges Church Rooms

St Georges Church Rooms

St Georges Church Rooms

St Georges Church Rooms

 St James Church   Cultural & Public Realm 

  • Projects
  • About
  • Contact
  • Search & Site Map

© Jeremy Stacey Architects 2003-2026